Nueva generación de fachada formada por un sistema de base con amplia gama de montantes y travesaños que da respuesta a las diferentes necesidades estéticas y constructivas de los proyectos arquitectónicos a través de soluciones integrales.
Su
perfilería desde 16 mm (fijado a una estructura portante) a 250 mm en
montantes y 22,5 mm a 255,5 mm en travesaños, al igual que los
accesorios complementarios, son comunes en esta serie de nuevas
fachadas. La amplia gama de estos perfiles y de uniones mecánicas
de los mismos, permite la ejecución de todo tipo de fachadas (en
vertical, con inclinación, en esquina a 90º, en rincón, poligonales),
así como la resolución de modulaciones con vidrios de gran tamaño y
peso.
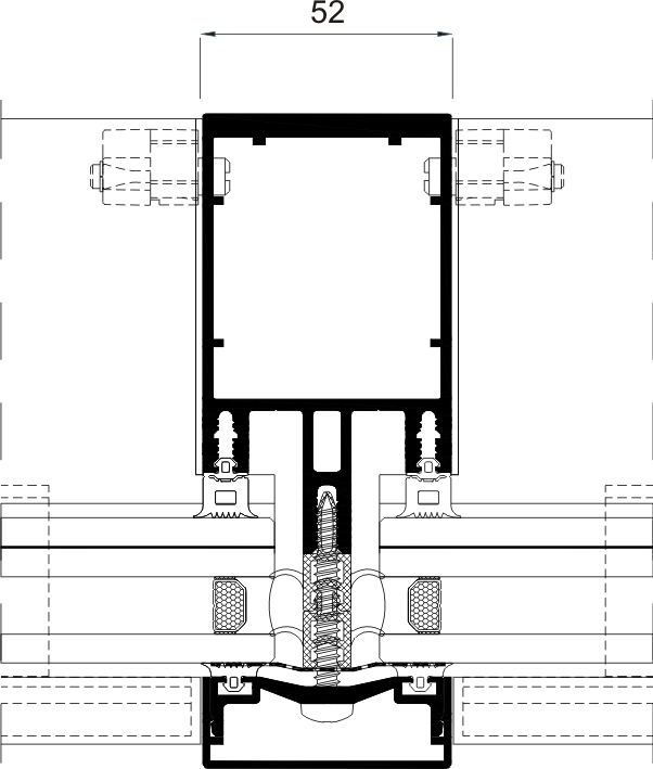
Esta fachada TPV 52
es un sistema mixto que nace de la combinación del TP 52 y el SG 52. En
él se mantiene al binomio presor-tapeta en las juntas verticales
resaltando la trama en este sentido, mientras que la fijación del vidrio
se produce mediante las grapas y el perfil-U en sus aristas
horizontales.
La gran Rotura de Puente Térmico, unida a su
gran capacidad de acristalamiento de hasta 44 mm. con composiciones de
vidrio de grandes espesores y energéticamente eficientes, confieren a
esta nueva gama de fachadas unas excelentes prestaciones térmicas y
acústicas.
Certificación CWCT según Normativa Británica
Ver información detallada del producto
- Empresa: Briceño Carpintería
- Categoría: Fachadas






